Dein kleines Wohnidyll ab 16. April 2026! Modern sanierte 2-Raum-Wohnung im EG mit Blick ins Grüne

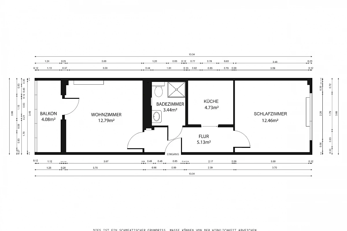
Gesamtfläche: 40,94 m²
Zimmer: 2
Kaltmiete: 240,00 € / Monat
Warmmiete: 364,00 € / Monat
Verfügbar ab: April 2026
Ort: Julius-Mosen-Straße 49, 08468 Reichenbach
Region: Vogtlandkreis

Details zur Immobilie

Preise

  • Kaltmiete: 240,00 EUR
  • Warmmiete: 364,00 EUR
  • Betriebs-/ Nebenkosten: 42,00 EUR
  • Heizkosten: 82,00 EUR
  • Nebenkosten inkl. Heizkosten: nein
  • Kaution: Genossenschaftsanteile 640 € + Eintrittsgeld 25 €

Ausstattung

  • Wohnungskategorie: Hochparterre
  • Art der Ausstattung: Gehoben
  • Etagenzahl: 4
  • Etage: 0
  • Aufzug: Nein
  • Befeuerung: Fernwärme (Dampf-Fernwärme)
  • Einbauküche (EBK): Nein
  • Dusche: Ja
  • Badewanne: Nein
  • Gartennutzung: Nein
  • Keller: Ja
  • Dachboden oder Abstellraum: Ja
  • Balkon / Terrasse / Loggia: Ja
  • Gästetoilette: Nein
  • Baujahr: 1981
  • Sanierungsjahr: 2025

Flächen

  • Wohnfläche: ca. 40,94 m²
  • Zimmerzahl: 2
  • Anzahl Badezimmer: 1
  • Anzahl Wohnzimmer: 1
  • Anzahl Schlafzimmer: 1
  • Stellplatz Typ: Unbekannt

Verwaltung

  • WBS benötigt: nein
  • Verfügbar ab: April 2026
  • Gewerbliche Nutzung möglich: nein
  • Haustiere: nach Vereinbarung
  • Wohnungsnummer: 095.102.12

Energieausweis

  • Energieausweis vorhanden: Ja
  • Energieeffizienzklasse: B
  • Baujahr Energieausweis: 1981
  • Erstellt am: 04.01.2018
  • Gültig bis: 03.01.2028
  • Art des Energieausweises: nach Verbrauch
  • Verbrauchskennwert insgesamt: ca. 69 kWh/(m²a)
  • Verbrauch inkl. Warmwasser: ja

Beschreibung im Detail

  • Diese modern sanierte 2-Raum-Wohnung findet ihr im Erdgeschoss/Hochparterre eines sanierten Mehrfamilienhauses. Sie ist ideal für Singles geeignet und ist vom aktuellen Mieter zum 31.03.26 gekündigt und kann ab ca. Mitte April 2026 wieder neu bezogen werden. Man betritt die Wohnung über den Flur. Das Schlafzimmer befindet sich auf der schattigeren Nordost-Seite und bietet perfekte Rückzugsmöglichkeiten zur Erholung und Entspannung nach einem langen Tag. Zur sonnigen Südwest-Seite gerichtet ist das Wohnzimmer inkl. Zugang zur verglasten Loggia mit Blick ins Grüne für erholsame Stunden. Das Badezimmer sowie die Küche sind innenliegend. Zur Wohnungsnutzung gehört ein Kellerabteil. Die Hausreinigung erfolgt über eine Firma. Die Kosten hierfür sowie für die Müllgebühren sind u.a. in der Betriebskostenvorauszahlung enthalten. Über den Kabelanbieter Pyur kann man nicht nur Fernsehen, sondern auch Internet und Telefon aus einer Hand empfangen.

Beschreibung der Lage

  • Die Julius-Mosen-Straße ist Teil des bekannten und beliebten Wohngebietes „Reichenbach West“ und ist umgeben von gepflegten Grünanlagen. Einkaufsmöglichkeiten sowie eine Bushaltestelle, ein Ärztehaus mit Apotheke, Kiosk, Post, Friseur, Café und Blumenladen befinden sich ebenfalls in der Nähe. Außerdem eine Grundschule, Kindergarten und -krippe sowie ein Spielplatz. In ca. 10 Minuten erreicht man per Rad das Naherholungsgebiet Göltzschtal mit seinen ausgebauten Rad- und Wanderwegen. Auch das idyllische Mylauer Freibad ist einen Besuch wert. Das Reichenbacher Zentrum ist in ca. 20 Minuten zu Fuß erreichbar. Die Anbindung zur A72, Richtung Chemnitz und Hof sowie nach Zwickau ist in ca. 5-10 Fahrminuten erreichbar.

Beschreibung der Ausstattung

  • Diese gemütliche 2-Raum-Wohnung ist bereits modern saniert und kann ab 16. April 2026 bezogen werden. Im Zuge der letzten Sanierung erfolgte die Verlegung von Laminat sowie PVC-Belag in Holzoptik. Der Küchenfußboden ist gefliest. Außerdem wurden weiße Innentüren eingebaut, wobei das Wohnzimmer und die Küche mit satinierten Vollglastüren ausgestattet wurden. Die Elektroinstallation wurde im selben Zuge erneuert, wobei in Küche und Bad energiesparende LED-Spots eingebaut wurden. Auch das Bad ist modern gefliest sowie mit einer ebenerdigen Dusche und Handtuchtrockner ausgestattet. Der Waschmaschinenanschluss ist in der Küche vorgesehen. Die Renovierung der Wohnung erfolgte mit weiß gestrichener Tapete. Weiteres praktisches Highlight ist die vorhandene Balkonverglasung, die an kalten und regnerischen Tagen als Wetterschutz dient, an warmen, sonnigen Tagen aber auch vollständig geöffnet werden kann. Die Heizungsanlage sowie die Versorgungsleitungen sind im gesamten Objekt bereits erneuert. Die jährliche Ablesung erfolgt per Funk - ein Zutritt zur Wohnung durch Dritte ist somit nicht mehr notwendig. Fenster und Wohnungseingangstüre sind ebenfalls modernisiert. Alle Schlafräume und Rettungswege sind mit Rauchwarnmeldern ausgestattet. ACHTUNG! Um euch eine bessere Vorstellung der möglichen Gestaltung und Einrichtungsmöglichkeiten zu vermitteln, haben wir die Wohnung für euch virtuell möbliert. Die Wohnung wird unmöbliert vermietet.

Weitere Informationen

  • Die Wohnungsbaugenossenschaft Reichenbach eG ist einer der wichtigsten Vermieter der Stadt - Dein Ansprechpartner für modernes Wohnen zu fairen Mietpreisen. Unsere Mieter profitieren von der Qualität und Ausstattung unserer Objekte, unserem Service und anderen zusätzlichen Leistungen. Zum Beitritt zur Genossenschaft sind einmalig 640,- € Anteile zzgl. 25,- € Eintrittsgeld zu zahlen. Bisher noch nicht fündig geworden? Nicht unsere gesamten verfügbaren Wohnungen werden hier angeboten. Fragt gerne bei uns nach und lasst uns gemeinsam etwas Passendes finden.