Telefon: 03765 38 75 20 | E-Mail: info@wbg-reichenbach.de

Liebe Mieter, Nachbarn und Reichenbacher!
Die Otto-Lilienthal-Straße ist Teil des beliebten Reichenbacher Wasserturmgebietes, welches sich direkt am Rand zu Feld und erholsamer Natur befindet.
Hier findet aktuell eine – in diesem Zustand zuvor noch nie dagewesene - Wohnungszusammenlegung statt.
In der Hausnummer 30 wohnt bereits eine nette, kleine Familie, welche sich in ihren jetzigen 4 Wänden wohlfühlt und dort gern wohnen bleiben möchte. Dennoch haben sie den Wunsch, sich gern wohnlich zu vergrößern.
Im August 2024 wurde die Nachbarwohnung der Familie frei und wir beschlossen die Gelegenheit zu nutzen und die beiden Wohnungen miteinander zu verbinden. Somit veranlassten wir erstmalig eine Wohnungszusammenlegung im bewohnten Zustand!
Was ist geplant?
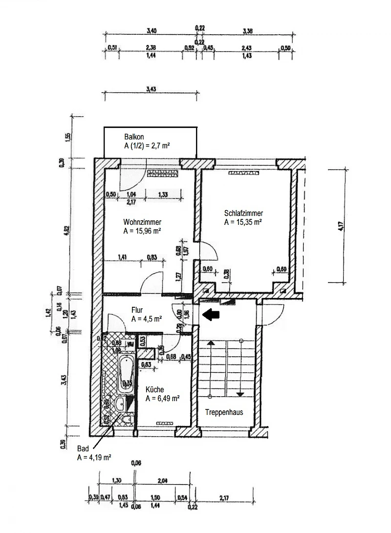
Geplant ist die bisherige 60 m²-große 3-Raum-Wohnung der Familie mit der freistehenden 50 m²-großen 2-Raum-Wohnung gegenüber zu verbinden.
Zu den Sanierungsmaßnahmen der dazukommenden Wohnung gehören die Erneuerung der Elektrik- und Sanitäranlagen, wobei das Bad neu und modern gefliest und mit einer Dusche ausgestattet wird. Des Weiteren erfolgt die Verlegung von neuem hochwertigem Belag, welche an die bisherige Wohnung angepasst wird.
Es erfolgt der Einbau neuer, weißer Innentüren, um den modernen, freundlichen Charakter der Wohnung zu unterstützen.
Wir freuen uns, dass wir die Wohnungszusammenlegung ermöglichen konnten und unseren Mietern somit eine noch bessere Wohnqualität bieten können.